You probably know Marbella, Spain. The name. Maybe you’ve never been there. Even if it’s one of the most luxurious places in Spain and in Europe, the sunny side way. And when you got some money to spend under the warm sun of the south, you can command and build a big, big, extraordinary house. Just for fun. Why not?
A-Cero is an architectural agency. An amazing one, with amazing project. Always remarkable things. And here is one of them: Marbella II.
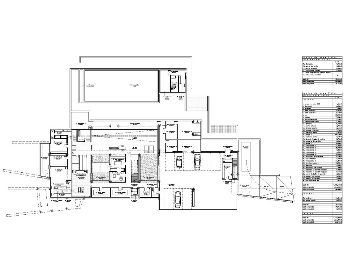
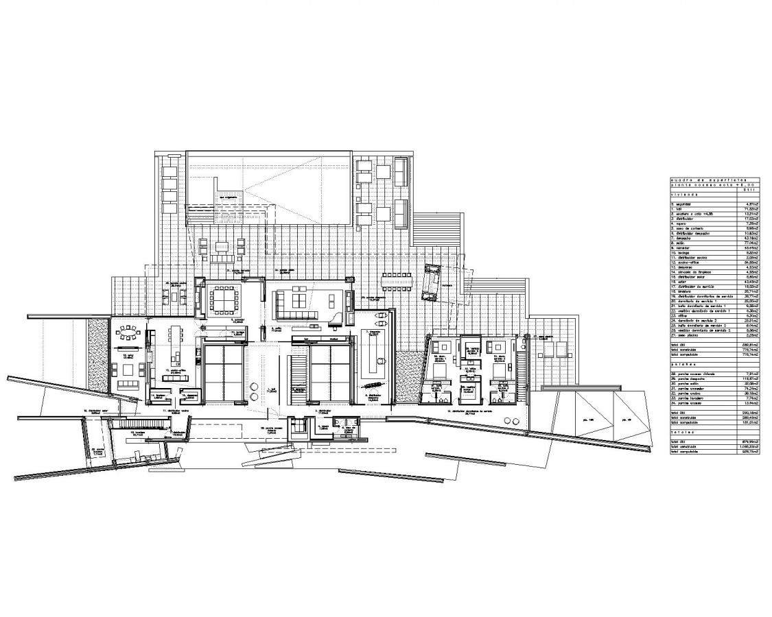
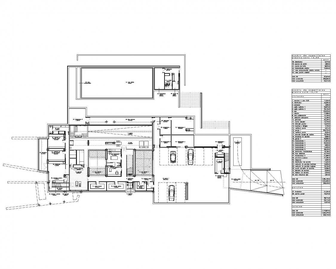
As you can see, everything is done for the people living there to have a beautiful view of the Mediterranean Sea. Unable to watch inside the house from the road behind.
I especially love the interior swimming pool. And the office. And the bedrooms. And. The large terrace with the pool. Would love to live here, for sure.
Are you dreaming of a large luxury house under the sun, like me? Stop dreaming. Buy one! (except if your banker is not so comprehensive…)
House location:
Puerto Banús, Marbella, Spain
Architect:
A-cero
Madrid, Spain
a-cero.com
Pictures: Jacobo España (Negami)


























